Het ontwerp

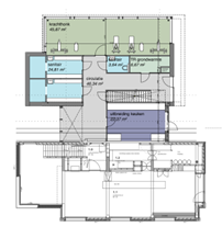
Krachthonk

De belangrijkste ruimte op de begane grond is de krachtruimte. Krachttraining is een essentieel onderdeel binnen het roeien en met deze ruimte voorzien we de roeiers en coaches in behoeftes die nu extern worden gefaciliteerd. De ruimte zal groot genoeg zijn voor squatrekken, een legpress en ander krachtmateriaal.

Daarnaast zullen er twee ruime kleedkamers worden gerealiseerd. Hier kunnen alle leden na het sporten douchen zodat we minder afhankelijk worden van de kleedkamers bij de loodsen. 

Keuken

Ook de keuken zal uitgebreid worden. Deze keuken zal voornamelijk gebruikt worden voor de catering bij wedstrijdweekenden, grote diners en het eten op de donderdag. De huidige keuken zal worden verbouwd tot een kleine ledenkeuken en een uitbreiding van het voorraadhok. 

In de aanbouw zal een nieuwe ingang komen. Er zal een ruime gang aanwezig zijn om het nieuwe en het oude gebouw met elkaar te verbinden.

Ergometer ruimte

Op de eerste verdieping zullen de ergometers komen te staan. Er zal plek zijn voor 20 ergometers en 6 spinfietsen. De aantallen zijn gebaseerd op de richtlijnen van de KNRB. De buitenkant zal vooral uit glas bestaan. 

De circulatieruimte is de overgang van het nieuwe naar het oude gebouw. Deze connectieruimtes zullen in dezelfde stijl worden gebouwd als bij de uitbouw van de Bond.

Uitstraling

De uitbouw zal groter worden dan het huidige gebouw en zal sterk lijken op de uitbreiding die de KNRB heeft neergezet in 2014. Door het gebruik van veel glas bij de kracht- en ergometerruimte zal Okeanos ook veel meer topsport uitstralen, waar leden vanaf 7 uur ‘s ochtends tot 9 uur ‘s avonds aan het trainen zijn.

Het realiseren van de sportruimte zal ons helpen om de ambities van Okeanos te verwezenlijken.